Amsterdam

Zeeburgerkade

€ 2.150 p.m.

Delen

Verhuurd

Omschrijving

Te huur per 21 juni via Home of Orange: ruim en licht 2-slaapkamer appartement op een prachtige locatie aan het water in een historisch pakhuis ‘Zondag’ in het Amsterdamse Oostelijk Havengebied.

HUURPERIODE: Vanaf 21 juni 2024 t/m februari 2025

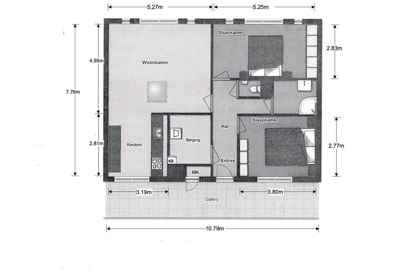
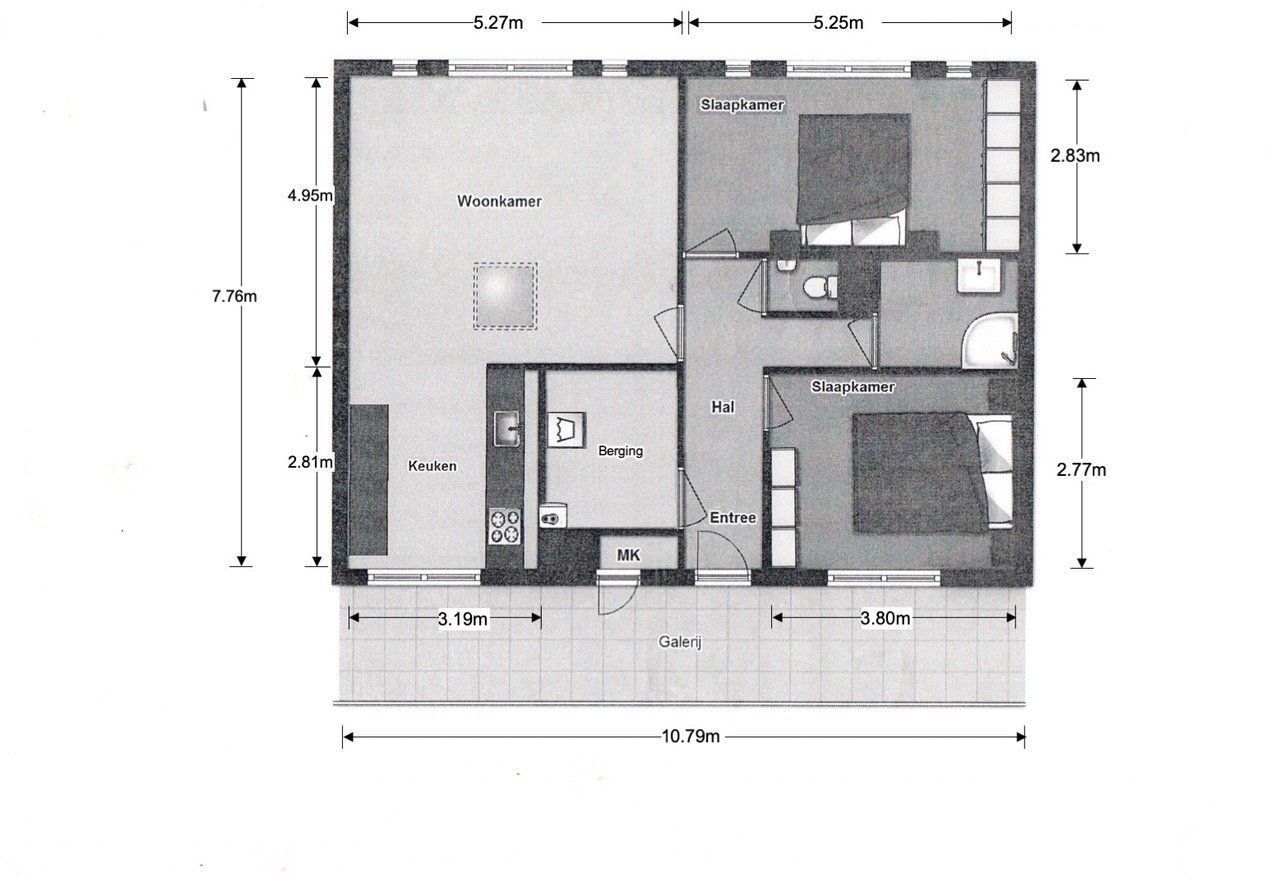
INDELING U komt binnen in de vernieuwde entree met video-intercom en elektrische deuren. Met de lift of de trap gaat u naar het appartement op de 6e etage (geen bovenburen!). Vanuit de woonkamer heeft u fraai uitzicht over het water van de Entrepothaven, met de nieuwe jachthaven, en de zwemsteiger aan de Borneokade. Met mooi weer kunt u vanaf uw luie bank genieten van de...

Kenmerken

Aanvaarding

Status
Verhuurd
Prijs
€ 2.150 p.m.
Aanvaarding
Beschikbaar vanaf 06/21/2024
Adres
Zeeburgerkade 134
Postcode
1019 HH

Bouw

Hoofdtype
Bovenwoning
Bouwtype
Bestaand
Onderhoud Binnen
Goed
Onderhoud Buiten
Goed

Energie

Energielabel
C

Indeling

Kamers
3 kamers
Slaapkamers
2 slaapkamers
Verdiepingen
1 verdieping

Oppervlakte en inhoud

Woonoppervlakte
82 m²
Inhoud
210 m³

Parkeerplaats

Parkeertypes
Betaald parkeren, Parkeergarage

Let's meet!

Volg ons

Schrijf je in voor onze nieuwsbrief

© 2025 Home of Orange

Website ByOGonline