Zaandam

Schildmeer 3

€ 475.000 k.k.

Delen

Verkocht onder voorbehoud

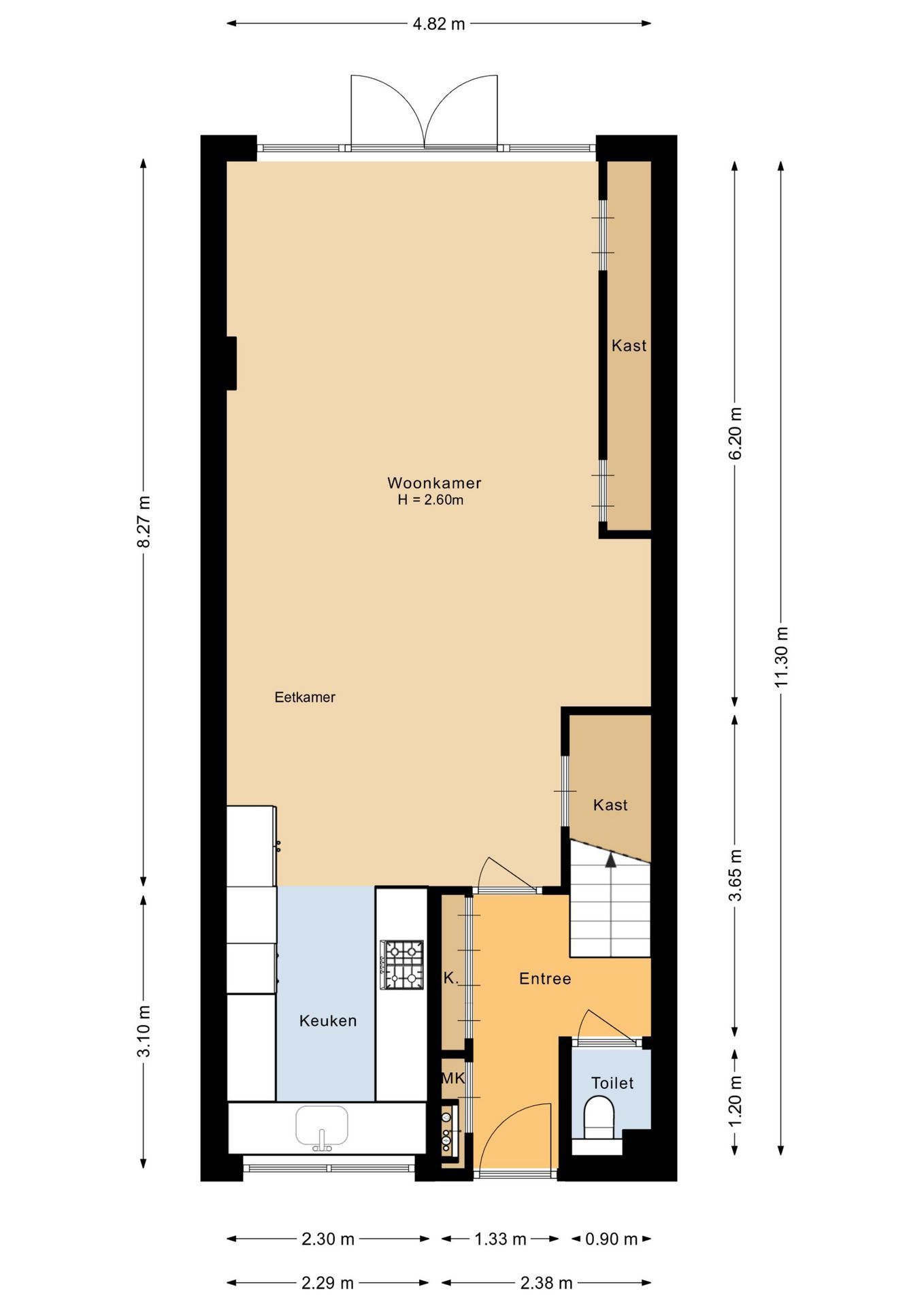
Omschrijving

Welkom op Schildmeer 3 in Zaandam. Een ruime gezinswoning van maar liefst circa 139 m², waar comfort, praktische indeling en een fijne ligging samenkomen. Dankzij de aanbouw uit 2018 voelt de woonkamer extra royaal en licht, met openslaande deuren die naadloos verbinden met de achtertuin op het noordoosten. De nieuwe overkapping geeft een perfecte plek om te ontspannen, buiten te eten of te genieten van een rustige middag in de zon. De vrije achterom maakt alles bovendien eenvoudig bereikbaar.

Ruimte en licht, klaar om eigen te maken. De U-vormige open keuken is modern, licht en praktisch ingericht, met volop ruimte...

Kenmerken

Aanvaarding

Status
Verkocht onder voorbehoud
Vraagprijs
€ 475.000 k.k.
Aanvaarding
In overleg
Adres
Schildmeer 3
Postcode
1509 JK

Bouw

Hoofdtype
Eengezinswoning
Bouwtype
Bestaand
Onderhoud Binnen
Goed
Onderhoud Buiten
Uitstekend goed

Energie

Energielabel
B

Indeling

Kamers
5 kamers
Slaapkamers
4 slaapkamers
Badkamers
1 badkamer
Verdiepingen
3 verdiepingen

Oppervlakte en inhoud

Woonoppervlakte
139 m²
Perceeloppervlakte
117 m²
Inhoud
451 m³

Buitenruimte

Tuintypes
Achtertuin, Voortuin

Locatie

Geïnteresseerd in

Schildmeer 3?

Plan nu een bezichtiging in

Let's meet!

Volg ons

Schrijf je in voor onze nieuwsbrief

© 2025 Home of Orange

Website ByOGonline