Amsterdam
Lange Vonder 32
Delen
Verkocht
Delen
Verkocht
Omschrijving
Wonen aan het water met zonnige tuin en energielabel A+!
Ben je op zoek naar een unieke woning aan het water met volop potentie om jouw woonwensen te realiseren? Dan is Lange Vonder 32 in Amsterdam precies wat je zoekt. Deze ruime eengezinswoning beschikt over een heerlijke tuin op het zuidwesten, een eigen steiger én een royale indeling die je volledig naar eigen smaak kunt moderniseren. Of je nu droomt van een fijn gezinshuis, een combinatie van wonen en werken, of simpelweg een woning met karakter en ruimte? Hier ligt jouw kans!
Ligging aan het water met tuin op het zonnige zuidwesten De...
Kenmerken
Aanvaarding
- Status
- Verkocht
- Prijs
- € 495.000 k.k.
- Aanvaarding
- In overleg
- Adres
- Lange Vonder 32
- Postcode
- 1035 JX
Bouw
- Hoofdtype
- Eengezinswoning
- Bouwtype
- Bestaand
- Onderhoud Binnen
- Goed
- Onderhoud Buiten
- Goed
Energie
- Energielabel
- A+
- Verwarming
- Cv ketel
- Water
- Cv ketel
- Ketelmerk
- Intergas (Eigendom)
- Bouwjaar Ketel
- 2018
Indeling
- Kamers
- 4 kamers
- Slaapkamers
- 3 slaapkamers
- Badkamers
- 1 badkamer
- Verdiepingen
- 3 verdiepingen
- Voorzieningen
- Mechanische ventilatie, Tv kabel, Schuifpui, Natuurlijke ventilatie
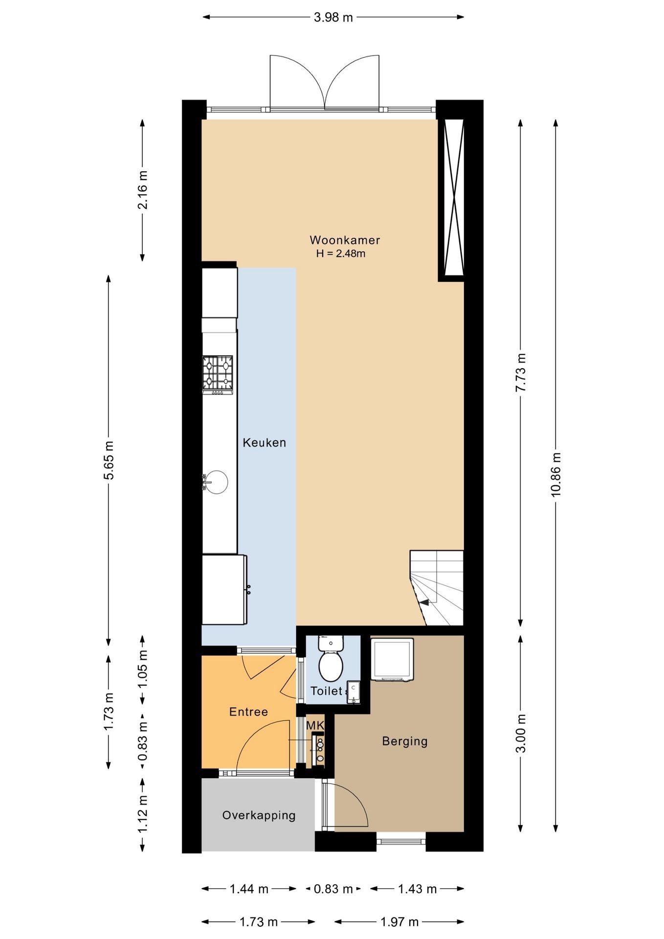
Oppervlakte en inhoud
- Woonoppervlakte
- 104 m²
- Perceeloppervlakte
- 83 m²
- Inhoud
- 368 m³
- Overige Oppervlakte
- 5 m²
Buitenruimte
- Tuintypes
- Achtertuin
- Hoofdtuin Type
- Achtertuin
- Oppervlakte Hoofdtuin
- 50 m² (500 cm x 1.000 cm)
- Oriëntatie Hoofdtuin
- Zuidwest
Schuur
- Schuurtjessystemen
- Inpandig
- Voorzieningen in Schuur
- Voorzien van elektra
- Isolatie in Schuur
- Volledig geisoleerd
- Aantal Schuren
- 1
Parkeerplaats
- Parkeertypes
- Openbaar parkeren