Purmerend

Haarspitstraat 74

€ 395.000 k.k.

Delen

Onder bod

Omschrijving

Welkom op Haarspitstraat 74 in Purmerend, gelegen aan een rustig plein met speelveld. Hier woon je in een prettige en kindvriendelijke omgeving. Een plek waar rust, ruimte en dagelijks gemak moeiteloos samenkomen.

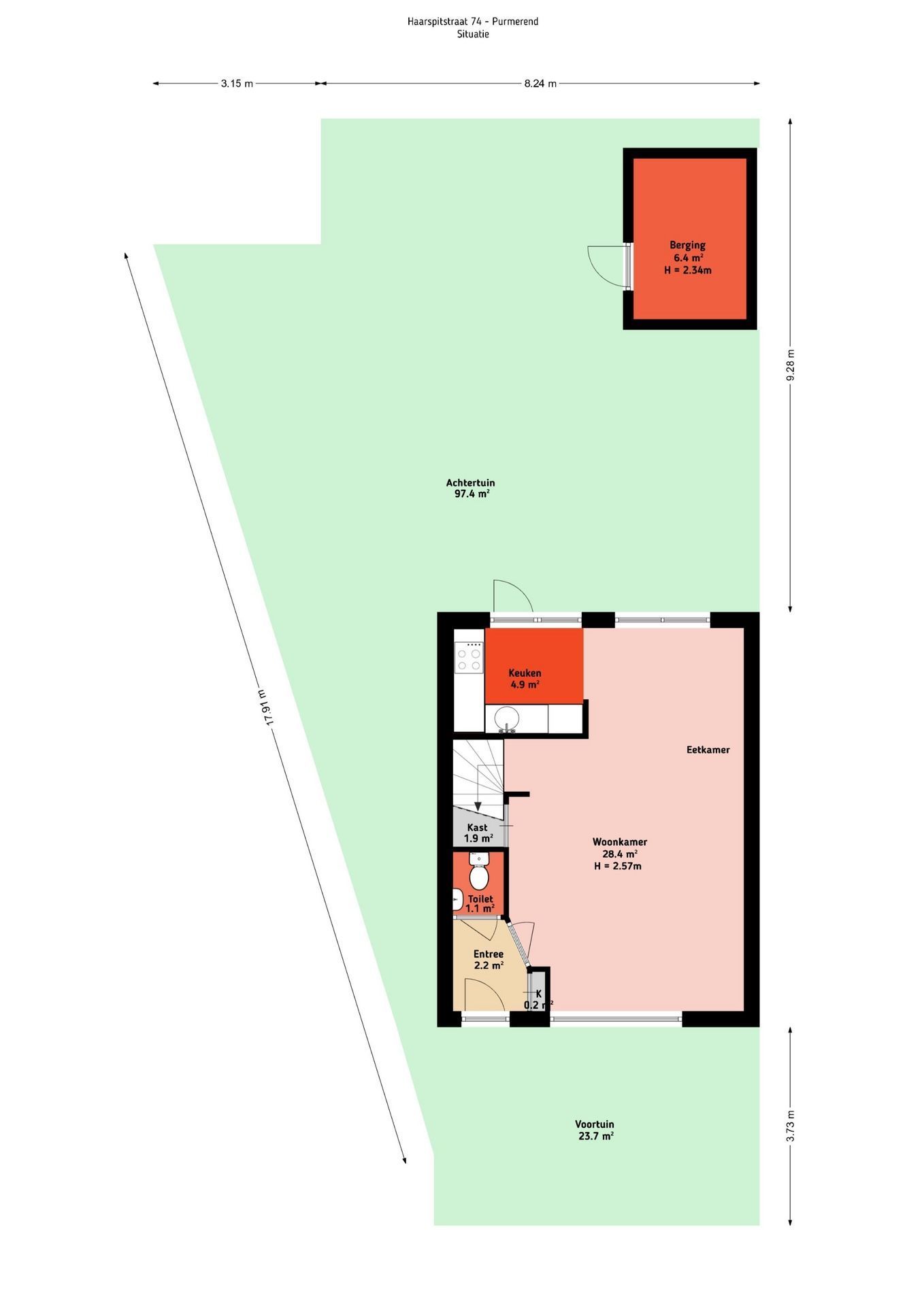
Ruimte en licht in een fijne hoekwoning. Deze hoekwoning heeft een verrassend ruime en lichte begane grond. De doorzon woonkamer zorgt voor een prettige lichtinval gedurende de hele dag, terwijl de open keuken in hoekopstelling mooi aansluit op het woongedeelte. Vanuit de keuken loop je zo de zonnige achtertuin in, gelegen op het zuidwesten.

Zonnig buitenleven, volop genieten. De royale achtertuin biedt volop zon en ruimte om te ontspannen, spelen of uitgebreid...

Kenmerken

Aanvaarding

Status
Onder bod
Prijs
€ 395.000 k.k.
Aanvaarding
In overleg
Adres
Haarspitstraat 74
Postcode
1445 HK

Bouw

Hoofdtype
Eengezinswoning
Bouwtype
Bestaand
Onderhoud Binnen
Goed
Onderhoud Buiten
Goed

Energie

Energielabel
A
Isolatie
Dakisolatie, Muurisolatie, Dubbel glas, Hr glas
Verwarming
Stadsverwarming
Water
Stadsverwarming

Indeling

Kamers
5 kamers
Slaapkamers
4 slaapkamers
Badkamers
1 badkamer
Verdiepingen
3 verdiepingen

Oppervlakte en inhoud

Woonoppervlakte
98 m²
Perceeloppervlakte
174 m²
Inhoud
357 m³

Buitenruimte

Tuintypes
Achtertuin, Voortuin, Tuin rondom
Hoofdtuin Type
Achtertuin
Oppervlakte Hoofdtuin
120 m² (800 cm x 1.500 cm)
Oriëntatie Hoofdtuin
Zuidwest

Schuur

Schuurtjessystemen
Vrijstaand steen
Aantal Schuren
1

Locatie

Geïnteresseerd in

Haarspitstraat 74?

Plan nu een bezichtiging in

Let's meet!

Volg ons

Schrijf je in voor onze nieuwsbrief

© 2025 Home of Orange

Website ByOGonline