Amsterdam

Crynssenstraat

€ 2.750 p.m.

Delen

Omschrijving

  • BESCHIKBAAR VOOR MAXIMAAL 11 MAANDEN -

Licht en luxe dubbel bovenhuis met zonnig dakterras.

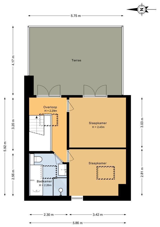
Per 13 oktober beschikbaar voor ca. 11 maanden via Home of Orange dit charmante dubbel bovenhuis van ca. 98 m² in de geliefde West-Indische buurt. Met twee slaapkamers, een balkon én een dakterras van ca. 24 m² geniet je hier volop van ruimte, licht en buitenleven.

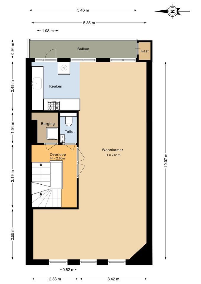
De woonkamer kijkt uit over de groene straat en heeft veel sfeer dankzij de grote raampartijen en de ingebouwde boekenkast. Aan de achterzijde vind je een breed balkon en de moderne open keuken, voorzien van alle inbouwapparatuur. Op de bovenste verdieping liggen...

Kenmerken

Aanvaarding

Status
Beschikbaar
Prijs
€ 2.750 p.m.
Aanvaarding
Direct
Adres
Crynssenstraat 50-3
Postcode
1058 XX

Bouw

Hoofdtype
Bovenwoning
Bouwtype
Bestaand
Onderhoud Binnen
Goed
Onderhoud Buiten
Goed

Energie

Energielabel
D
Isolatie
Dubbel glas
Verwarming
Cv ketel
Water
Cv ketel
Ketelmerk
Intergas (Eigendom)
Bouwjaar Ketel
2015

Indeling

Kamers
4 kamers
Slaapkamers
2 slaapkamers
Badkamers
1 badkamer
Verdiepingen
3 verdiepingen
Voorzieningen
Mechanische ventilatie, Tv kabel, Natuurlijke ventilatie

Oppervlakte en inhoud

Woonoppervlakte
98 m²
Inhoud
328 m³

Roofterrace

Oppervlakte Dakterras
( x )

Parkeerplaats

Parkeertypes
Openbaar parkeren, Betaald parkeren, Parkeervergunningen

Locatie

Geïnteresseerd in

Crynssenstraat 50-3?

Plan nu een bezichtiging in

Let's meet!

Volg ons

Schrijf je in voor onze nieuwsbrief

© 2025 Home of Orange

Website ByOGonline