Amsterdam

Boymansweg 7

€ 895.000 k.k.

Delen

Verkocht onder voorbehoud

Omschrijving

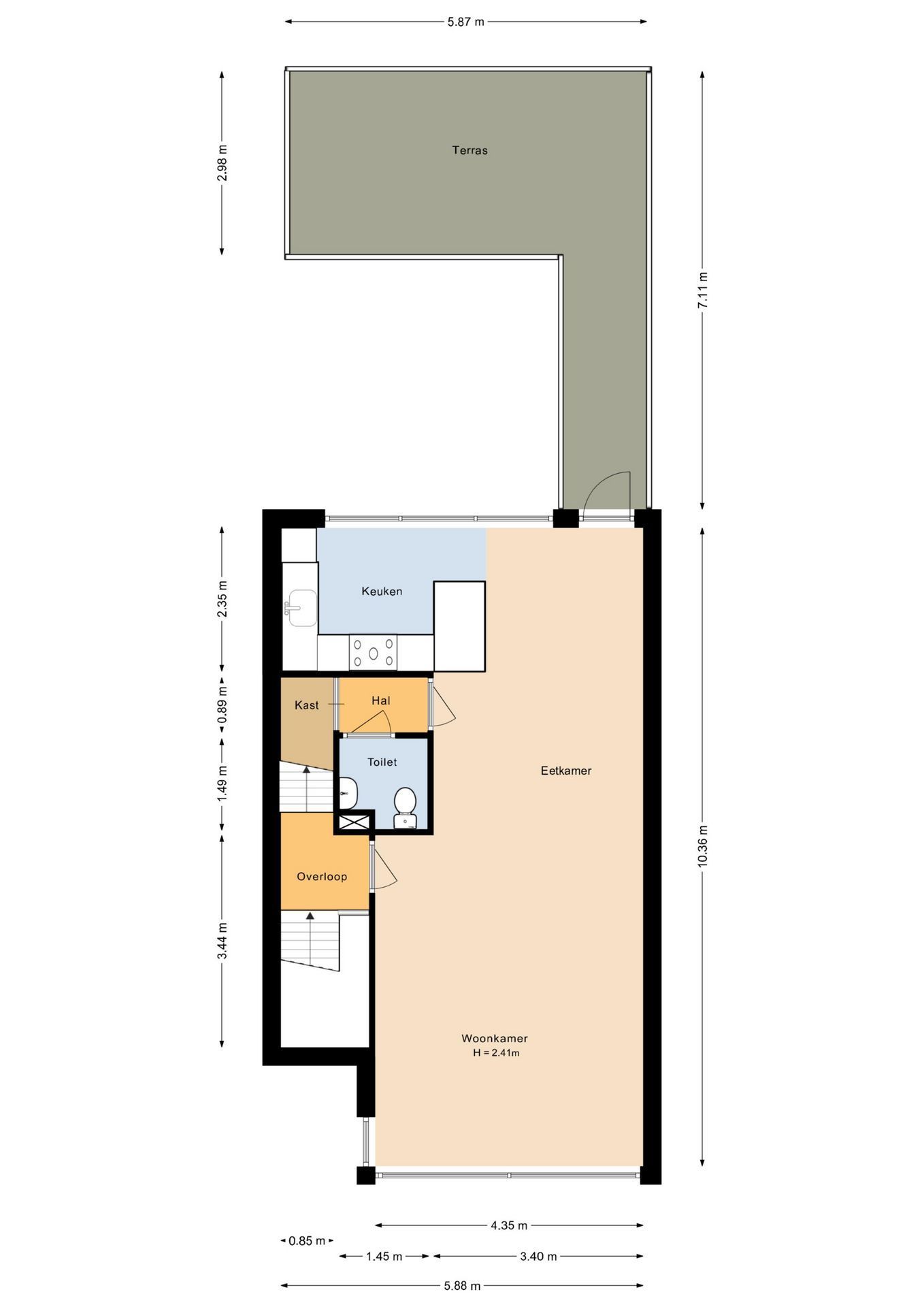
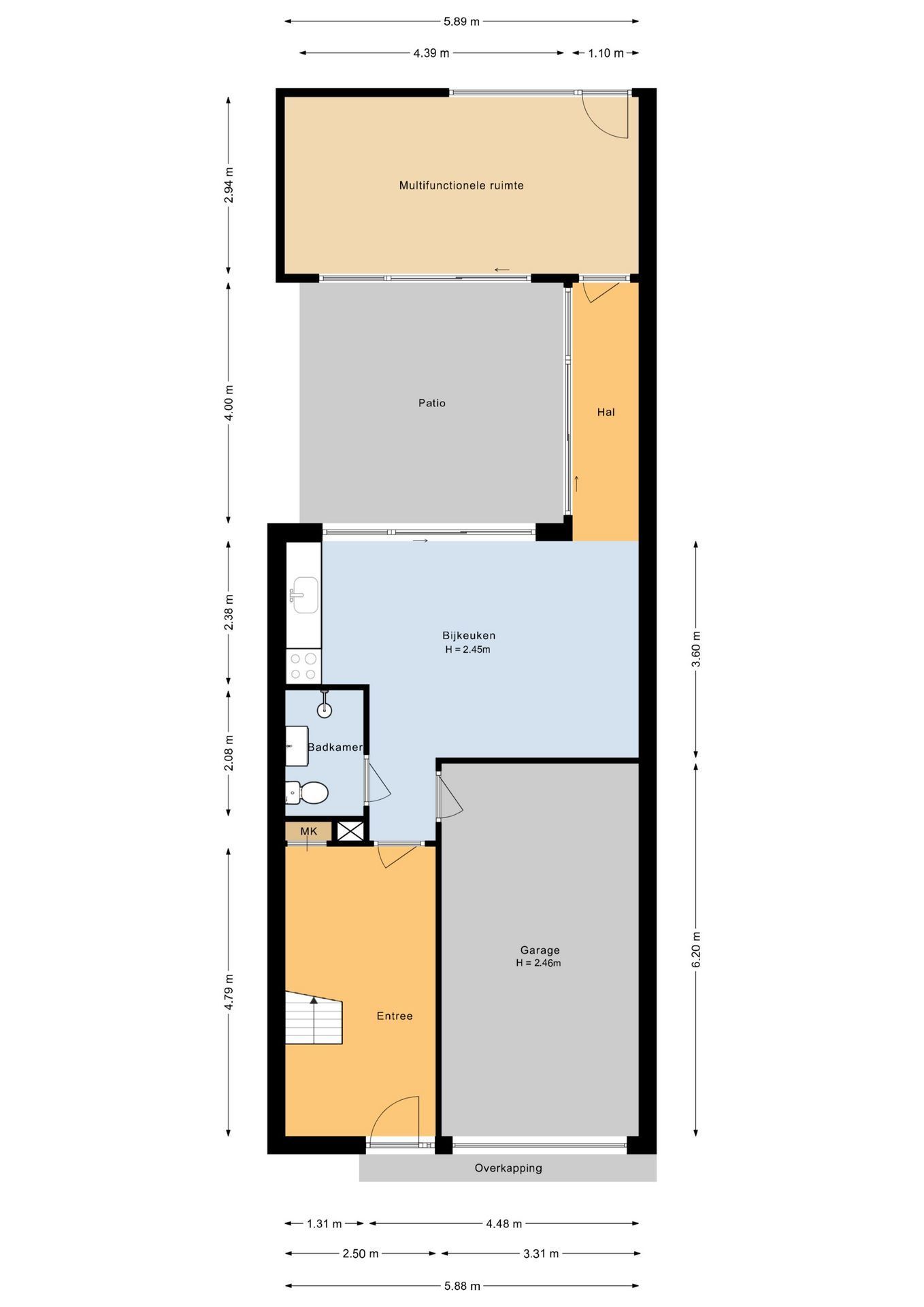
Welkom bij Boymansweg 7, een bijzonder ruime woning van maar liefst 168 m², verdeeld over drie woonlagen, rustig gelegen aan de Sloterplas. Een plek waar comfort, flexibiliteit en rust samenkomen en waar je alle ruimte hebt om het wonen volledig naar jouw hand te zetten.

Deze woning biedt een unieke indeling met twee keukens, verdeeld over de begane grond en de eerste verdieping. Hierdoor is de woning uitermate geschikt als kangoeroewoning, voor praktijk aan huis, of voor wie wonen en werken graag wil combineren zonder concessies te doen. Met twee badkamers, meerdere woonlagen en slimme scheiding van functies is dit een...

Kenmerken

Aanvaarding

Status
Verkocht onder voorbehoud
Prijs
€ 895.000 k.k.
Aanvaarding
In overleg
Adres
Boymansweg 7
Postcode
1064 WR

Bouw

Hoofdtype
Eengezinswoning
Bouwtype
Bestaand
Onderhoud Binnen
Redelijk goed
Onderhoud Buiten
Redelijk goed

Energie

Energielabel
A
Isolatie
Dakisolatie, Vloerisolatie, Volledig geisoleerd
Verwarming
Cv ketel
Water
Cv ketel
Ketelmerk
Vaillant 2019 ()
Bouwjaar Ketel
2019

Indeling

Kamers
6 kamers
Slaapkamers
3 slaapkamers
Badkamers
2 badkamers
Verdiepingen
3 verdiepingen

Oppervlakte en inhoud

Woonoppervlakte
168 m²
Perceeloppervlakte
118 m²
Inhoud
611 m³
Overige Oppervlakte
20 m²

Buitenruimte

Tuintypes
Patio atrium, Zonneterras
Hoofdtuin Type
Patio atrium
Oppervlakte Hoofdtuin
18 m² (439 cm x 400 cm)

Parkeerplaats

Parkeertypes
Parkeervergunningen

Garage

Garagetypes
Garage met carport
Aantal Garages
1
Oppervlakte Hoofdgarage
21 m² (331 cm x 620 cm)

Locatie

Geïnteresseerd in

Boymansweg 7?

Plan nu een bezichtiging in

Let's meet!

Volg ons

Schrijf je in voor onze nieuwsbrief

© 2025 Home of Orange

Website ByOGonline